AP27
Wohnung / Miete
Alexander-Puschkin-Straße 27
01744 Dippoldiswalde / Heidepark
Deutschland / Sachsen
166,00 EUR
6,75 EUR
231,00 EUR
40,00 EUR
25,00 EUR
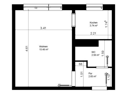
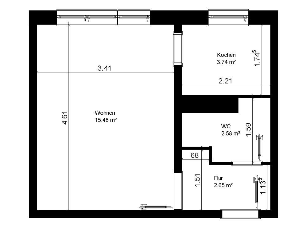
ca. 25 m²
1
1
1
Außenstellplatz
ca. 7 m²
ca. 25 m²
ca. 25 m²
normal
5
Etagenheizung
Elektro
Fliesen, PVC
Einbauküche
mit Anschluss für Waschmaschinen, mit Dusche
Abstellraum
Hausmeister, Reinigung
West
Kabel-TV
400
doppelt verglast
Kunststoff
Holz
1984
modernisiert
2022
100
100
Fernblick
ca. 350 m
ca. 100 m
ca. 800 m
ca. 25 km
ca. 15 km
ca. 800 m
ca. 1 km
ca. 1 km
ca. 200 m
ca. 2.000 m
ca. 1.000 m
ca. 25 km
ca. 100 m
Wohnen
01.02.2026
nach Vereinbarung
19.01.2026
Unsere Mitarbeiter helfen Ihnen gern weiter.









